受付終了
6/1~2【2棟同時見学会】@蟹江町
|
日程 |
6月1(土) 、2(日) 10:00~17:00 |
|---|---|
|
場所 |
海部郡蟹江町 |
6/1~2【2棟同時見学会】@蟹江町
構造や内装を見比べ体感できる!



イベント内容
● 日程:2024年6月1日(土)~2日(日) AM10:00-PM5:00
● 場所:海部郡蟹江町学戸6丁目211-1(学戸モデルハウス)/蟹江町大字今字五之坪15番8(五之坪分譲住宅)
同時見学会では複数の建物を見学する事ができ、構造や内装を直接比較することができます。これにより、自分のニーズや好みに適した選択肢を見つけることができ、またより良い判断を下すことができます。異なる場所や各設備の特徴を理解し、最終的に最も満足の高い選択をすることができます!
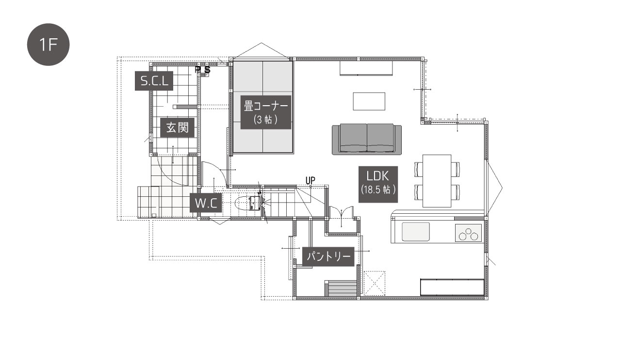
▮学戸モデルハウス ~内装の自由度が高い家~



HOUSE DATE
1F / 69.56㎡ (21.04坪)
2F / 54.66㎡ (16.53坪)
延床面積 / 124.22㎡ (37.57坪)
敷地面積 / 140.35㎡ (42.45坪)
学戸モデルハウスはテクノストラクチャー工法で建てられています。テクノストラクチャー工法は、高性能で耐久性のある建築物を作るための革新的な方法です。この方法では、鉄筋などの強固な素材を使用し、建物の耐久性や断熱性を向上させることができます。テクノストラクチャー工法を用いた家は、地震や自然災害に強く、高い安全性を提供しつつも、内装やデザインの自由度が高く、現代的でスタイリッシュな家を実現することが可能です。



▮五之坪分譲住宅 ~31.5坪の土地に建つ『ママ目線』間取りの駅チカ分譲住宅



HOUSE DATE
1F / 49.76㎡ (15.05坪)
2F / 55.48㎡ (16.78坪)
延床面積 / 105.24㎡ (31.83坪)
敷地面積 / 104.08㎡ (31.48坪)
『名古屋まで電車で10分』という、アクセスの良いJR蟹江駅まで徒歩約5分の場所にある五之坪分譲住宅は、『ママ目線』の家です。広々としたリビングやキッチンは、家事を行いながら子供とのコミュニケーションを取るのに便利ですし、収納スペースが充実していると、子供のおもちゃや衣類を整理しやすくなります。また家事動線も、キッチン、洗濯室、リビングが近接していることで、家事をする労力を最小限に抑えることになり、家族がより快適に生活できる環境を提供します。


