SEMI ORDER
SEMI ORDER
ADVANCE
MUSEUM

本体価格(税込)
16,940,000円
家族の思い出や旅の記憶、趣味もアートも、たっぷりと、自由にディスプレイを楽しめる家。そんな、モノに囲まれた暮らしを楽しむためにデザインされた家
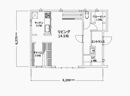
1階床面積|53.20㎡
2階床面積|53.20㎡
延べ床面積|106.40㎡(32.18坪)
暮らしを彩る“もの”に寄り添った空間で構成された住宅。 飾り棚のあるリビングにこだわりの小物を並べれば、それらはダクトレールから伸びる照明に照らされて、ひとつの展示物になります。保管庫としての役割は大容量で機能的な収納室で。創造性を高める制作スペースとしてのアトリエとキッチン。家族がものと向き合うことで完成する、”家族の博物館”としてのMUSEUM。
GALLERY