SEMI ORDER
SEMI ORDER
ADVANCE
HACO HACO

本体価格(税込)
19,910,000円
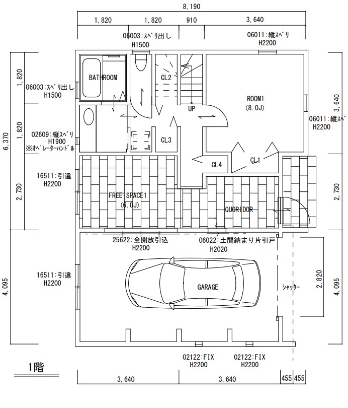
ガレージが隣接していることで、車も家の使い方もそのときどきのライフスタイルに合わせて変えてゆくことが可能です。
1階床面積|79.49㎡
2階床面積|52.17㎡
延べ床面積|131.66㎡(39.82坪)
⾞も家も、そのときどきのライフスタイルに合わせて使い方を変えていきます。ガレージのスペースがあることで、創造的な暮らしが生まれます。人生の中で、変わっていくことも、ずっと変わらない価値も。その時のジブンが⼤切にしたいことを形にできる空間です。
GALLERY