SEMI ORDER
SEMI ORDER
A SERIES
68A

本体価格(税込)
15,290,000円
小さいながら必要な要素はそろっている。シンプル&コンパクトな暮らしに最適なプランです。
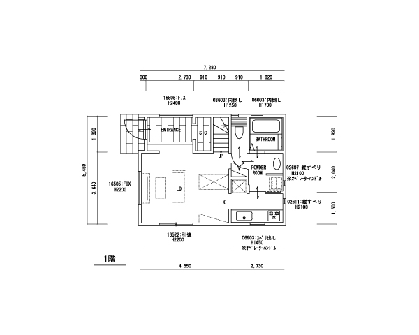
1階床面積|39.20㎡
2階床面積|39.74㎡
延べ床面積|78.94㎡(23.87坪)
【PLAN】
・JAPONE
・ANTICO
・SCANDIA
広々した玄関・リビング・ダイニングと、家事の動線を考えた機能空間が特徴的な68。1階の水まわりはキッチンからお風呂、洗面台まで一塊にまとめられ、洗濯や料理、掃除をしやすく。2階のフリースペースは家族の変化に合わせ、本棚を置いてみんなの図書館にしたり、オプションで部屋に変更することもできます。主寝室には大きなウォークインクローゼットがストレージの役割を果たします。
GALLERY